West Point

Threaded Boxes

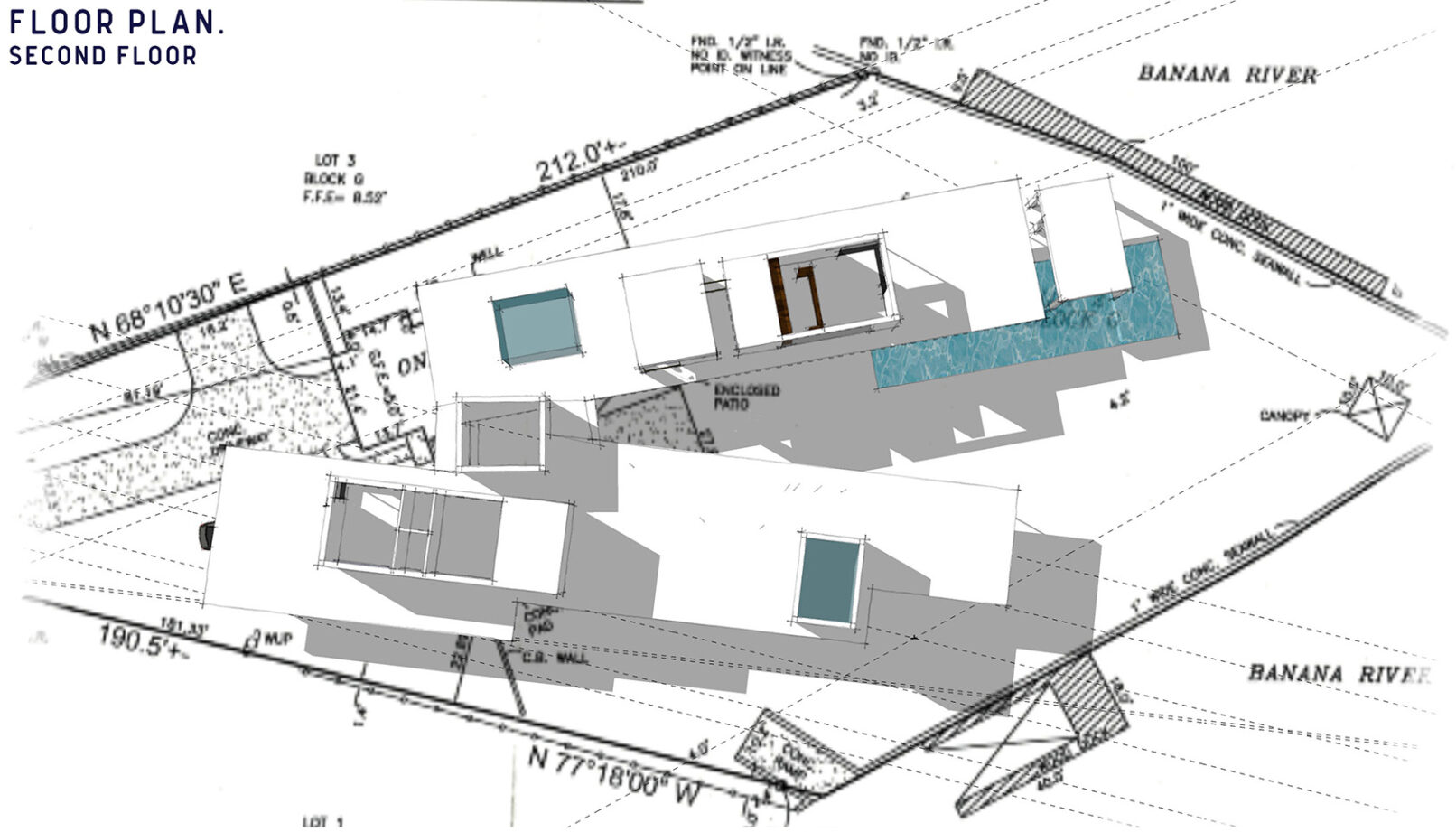
A two-story custom modern private residence in Cocoa Beach, Florida.